AddressPlot 110, Love Road, Tejgaon Industrial Area, Dhaka
TypeCommercial Building
Land Area25.13 Katha
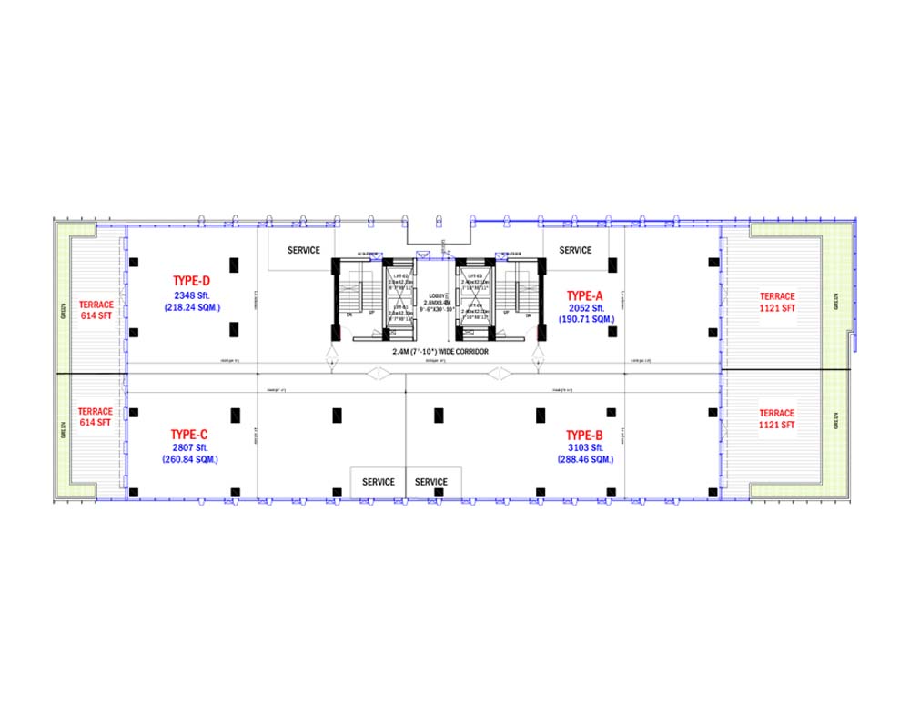
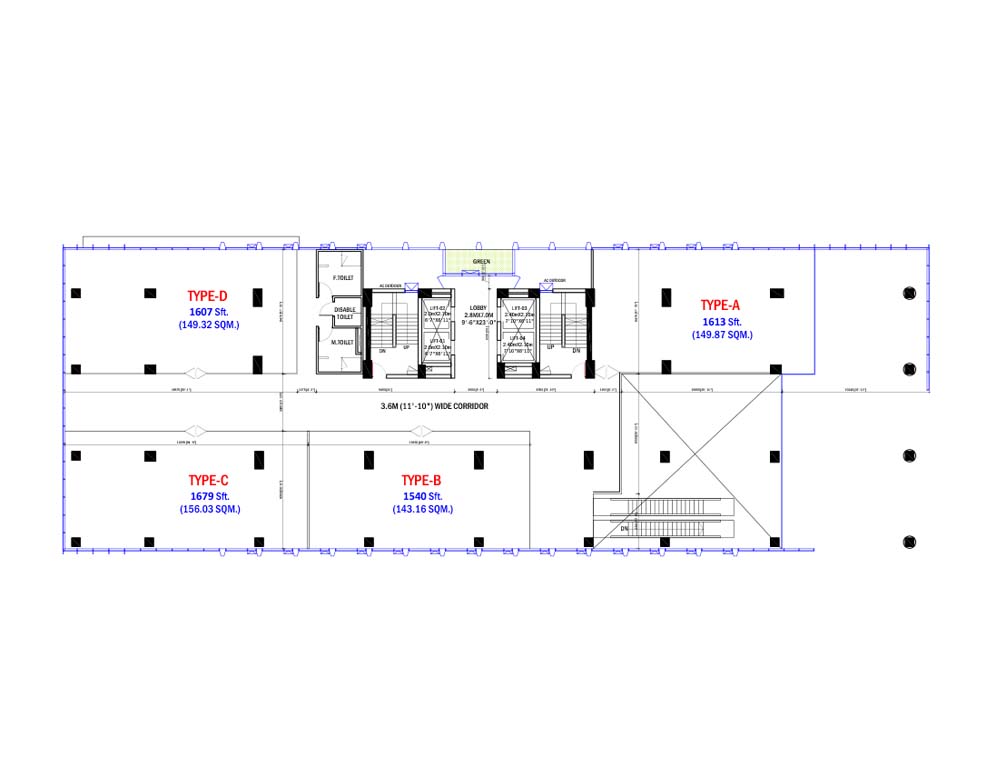
Levels14 Storied (B2+B1+G+13)
Commercial Unit Size536 - 7176 sft. (Approx)
Units Per Level1 - 2
Units32
Parkings67
Elevator04
Staircase02, with Fire Door
HandoverDecember 2029
Design ConsultantBINYASH





























